APPARTEMENT NEUF T3 AVEC TERRASSE - QUARTIER PARAME - SAINT MALO - HORS PINEL
à SAINT MALO

1 010 € HCréf.GES-1723

Ce bien vous intéresse ?
Vous souhaitez le visiter ?

Contactez-nous

Description du bien

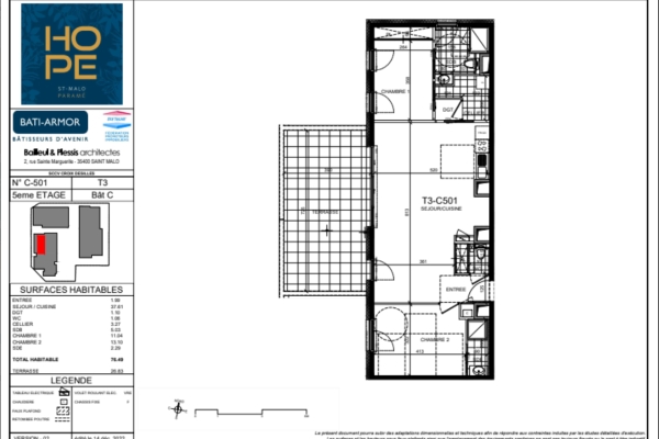
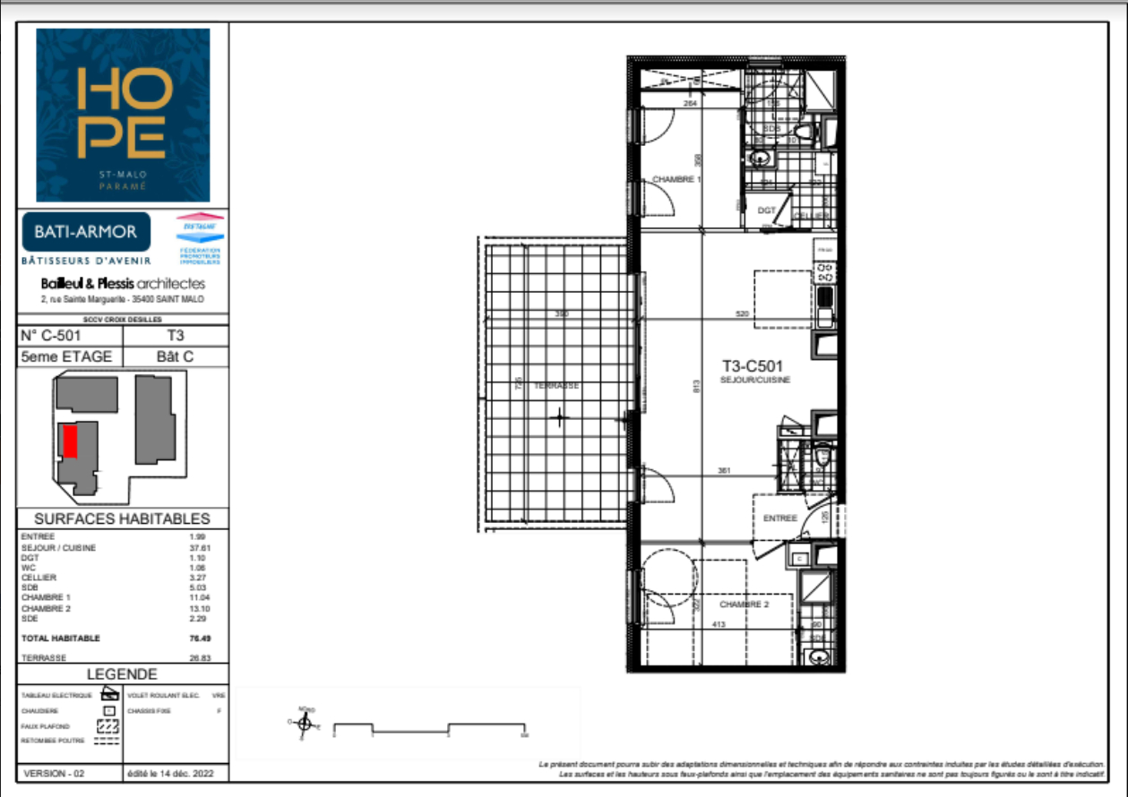
APPARTEMENT NEUF T3 AVEC TERRASSE - QUARTIER PARAME - SAINT MALO - HORS PINEL Côme vous invite à visiter un magnifique appartement T3 de 76.74m², dans un immeuble neuf, situé dans le quartier prisé de Paramé, proche des écoles supérieures et des commerces. Niché au 5ème et dernier étage du bâtiment C, cet appartement offre un cadre de vie moderne et fonctionnel. Il se compose d'une entrée avec placard, d'une pièce de vie lumineuse avec coin cuisine aménagée et semi-équipée donnant sur une terrasse de plus de 25m2, de deux chambres avec chacune sa salle d'eau privative, d'un WC séparé, d'un dégagement avec cellier. Vous disposerez également d'un garage double en sous-sol. N'hésitez pas à contacter le cabinet Côme immobilier pour programmer une visite en rappelant la référence GES-1723. Les informations sur les risques auxquels ce bien est exposé sont disponibles sur le site Géorisques : www.georisques.gouv.fr.

Informations complémentaires

  • Nb. de pièce(s) : 3
  • Chauffage : -
  • Nb. de chambres(e) : 2
  • Loyer : 1 010 € HC
  • Exposition : -
  • Charges : 50 €
  • Surface habitable : 77 m²
  • Honoraires : 852 €
  • Surface du séjour : - m²
  • Dépôt de garantie : 1 010 €
  • Disponibilité : 14/04/2026
  • Surface terrain : - m²
  • Référence : réf.GES-1723
  • Nb. de niveaux : -

Informations non contractuelles ne pouvant engager l’agence.

Dépenses énergétiques

DPE GES

Demande de renseignements

Nous écrire

En soumettant ce formulaire, j'accepte que les informations saisies soient exploitées dans le cadre de la gestion commerciale. *

Côme Immobilier

 02 23 45 00 84

51 bis, Boulevard de la Liberté
35000 Rennes

Côme Immobilier

Annonces pouvant vous intéresser

APPARTEMENT T3 RECENT DE 69.11M² AVEC LARGE BALCON ET PARKING EN SOUS-SOL- RESIDENCE CADENCE - SAINT MALO (PINEL ET GLI)

à SAINT MALO

823 € HCLibre le 20/04/2026réf.GES-2569

APPARTEMENT T1 MEUBLE - RESIDENCE NEUVE - MAJOR LE BOIS - SAINT MALO

à SAINT MALO

590 € HCréf.GES-2577

APPARTEMENT TYPE 2 - 51,46M² - IMMEUBLE "LES HORIZONS" - BOURG L'EVEQUE - RENNES - TERRASSE - CAVE & PARKING

à RENNES

628 € HCLibre le 25/02/2026réf.GES-2462

1